Großes Glück für die kleine Familie - Neuwertiges Reihenmittelhaus in Erding!
- Eckdaten
- Objektbeschreibung
- Ausstattung
- Lage
- Energieausweis
- Sonstiges
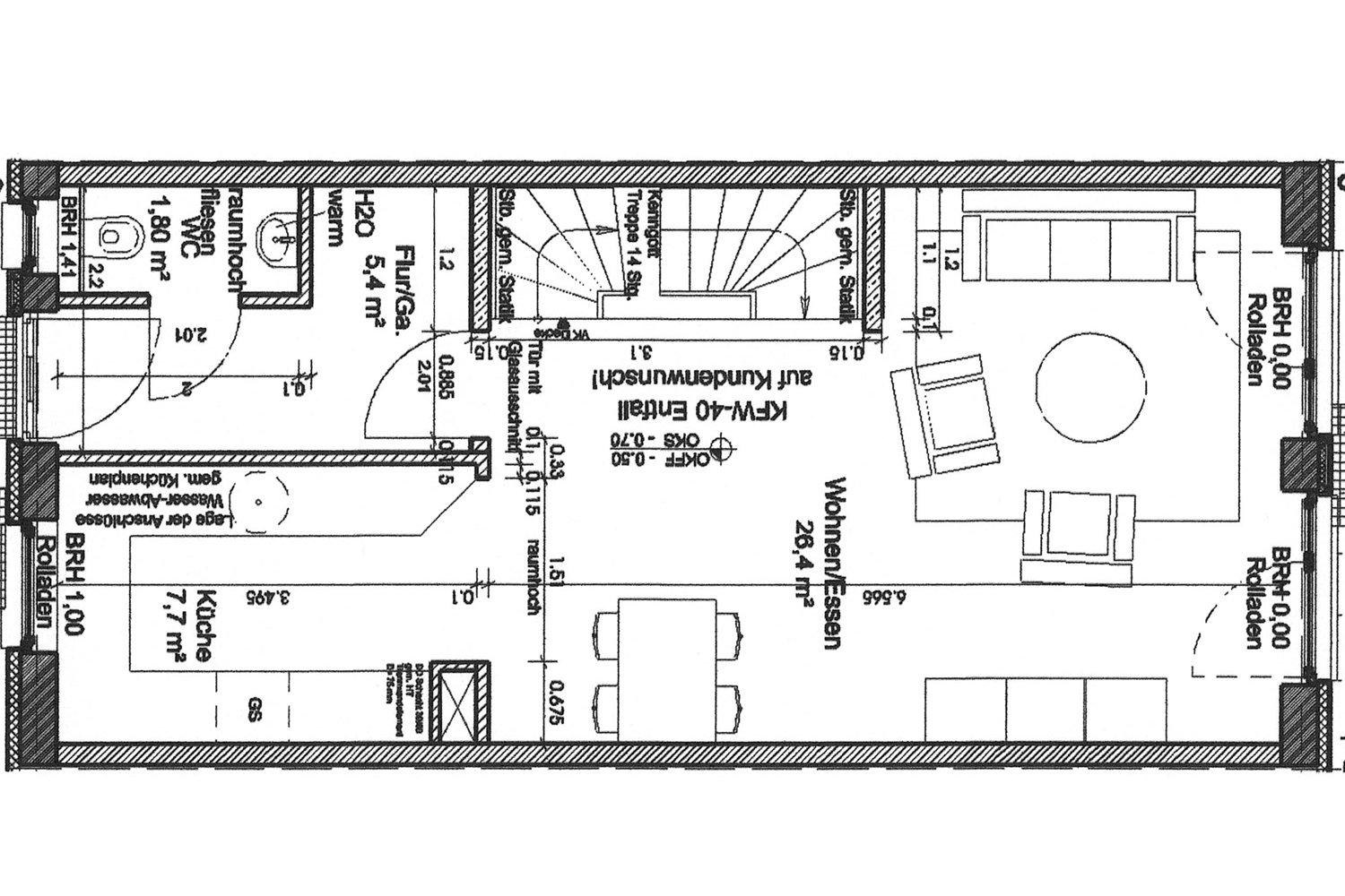
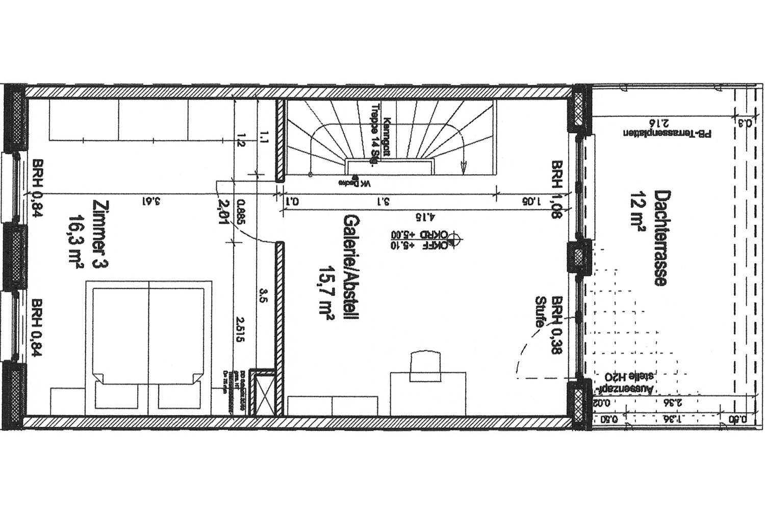
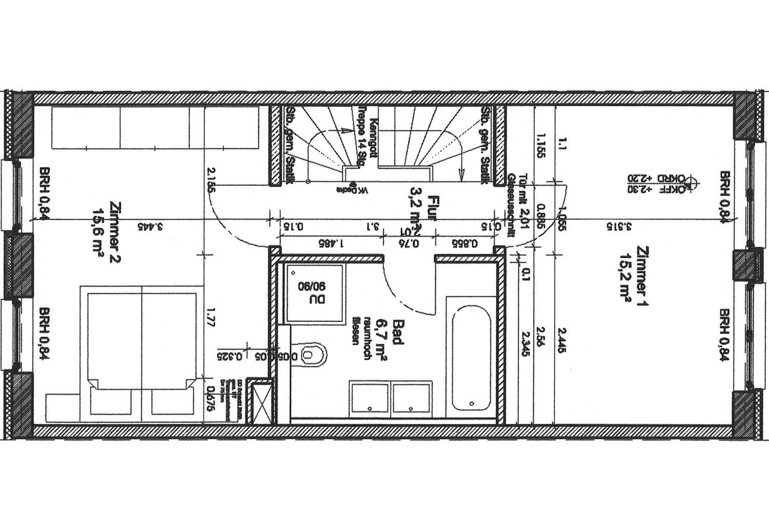
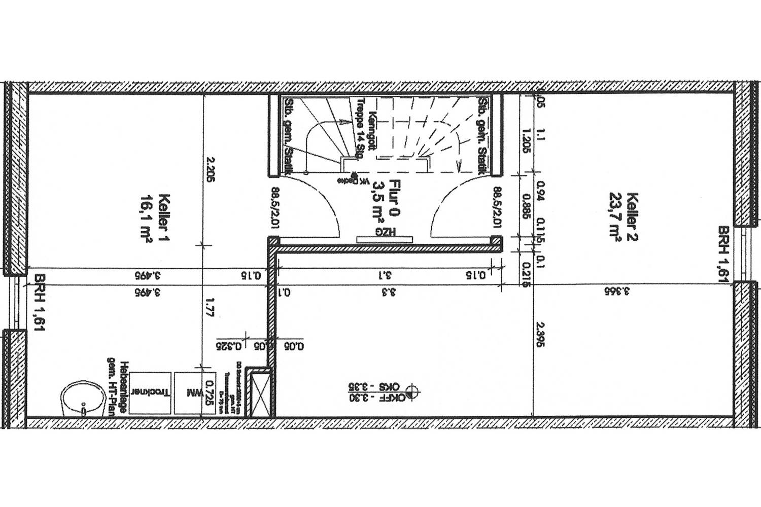
Haustyp: Reihenmittelhaus Ort: 85435 Erding Wohnfläche: ca. 120 m² Zimmer: 5 Baujahr/Sanierung: 2008 / - Objektzustand: neuwertig Carport / Stellplatz: 1x / 1x verfügbar ab: sofort Miete: 1.800,00 EUR Nebenkosten: 250,00 EUR Gesamtmiete: 2.050,00 EUR Kaution: 5.400,00 EUR Dieses neuwertige Reihenmittelhaus befindet sich in einer ruhigen Anliegerstraße auf einem ca. 180 m² großen und liebevoll angelegten Grundstück. Die Wohnfläche von insgesamt ca. 120 m² verteilt sich im Erdgeschoss auf einen großen Wohn- und Essbereich mit Zugang zu einer West-Terrasse mit Beschattungssystem und einen liebevoll angelegten Garten, eine offene Küche, die mit einer modernen Einbauküche ausgestattet ist, sowie einen Flur mit Garderobe und Gäste-WC. Vom Wohnbereich führt eine freitragende Holztreppe in das Obergeschoss des Hauses. Hier befinden sich ein großes Kinderzimmer, ein hell gefliestes Bad mit begehbarer Wellnessdusche sowie ein geräumiges Schlafzimmer. Ein besonderes Highlight stellt das ausgebaute Dachgeschoss dar. Hier stehen ein weiteres Schlafzimmer sowie ein helles Dachstudio mit Zugang zu einer großen Dachterrasse mit Beschattungssystem zur Verfügung. Darüber hinaus runden ein praktischer Hauswirtschafts- und ein Kellerraum im Untergeschoss sowie ein Carport und ein Aussenstellplatz dieses Angebot ab. Insgesamt bietet dieses Haus durch seine Aufteilung viel Platz für eine kleine Familie und individuelle Nutzungsmöglichkeiten. Überzeugen Sie sich am besten selbst bei einem virtuellen 360 Grad-Rundgang oder bei einer Besichtigung vor Ort.
+ Echtholzboden (EG) / Echtholzlaminatböden (OG/DG)
+ Fernwärme-Zentralheizung mit Fussbodenheizung
+ dezentrale Wohnraumbelüftung mit Wärmerückgewinnung
+ Holzisolierfenster mit elektr. Außenrollläden
+ Insektenschutz an allen Fenstern
+ neuwertige Einbauküche mit Elektrogeräten
+ Smarthome-Steuerung (Heizung / Rollläden)
+ LAN-Anschlüsse in allen Etagen
+ modernes Bad mit begehbarer Wellnessdusche
+ voll ausgebautes Dachgeschoss mit Dachterrasse & Beschattungssystem
+ große Schrankwand im Dachstudio
+ sonnige West-Terrasse mit Überdachung und Markise
+ liebevoll angelegter Garten mit Bewässerungssystem
+ ein Carport (mit 22 kW Lademöglichkeit) / ein StellplatzDie Große Kreisstadt Erding hat sich im Laufe der Jahre von einer altbayrischen Herzogstadt zum Zentrum eines wachstumsstarken Landkreises entwickelt. Viele historische Gebäude, wie z.B. die Stadtpfarrkirche St.Johann, der Schöne Turm oder das Frauenkircherl am Schrannenplatz sind noch heute Zeugnisse einer bewegten Geschichte. Vor diesem historischen Ambiente vermitteln die zahlreichen Straßencafes und Restaurants ein modernes Flair und ein entspanntes Lebensgefühl. Erding bietet ein reichhaltiges Angebot an Sport-, Freizeit und Erholungsmöglichkeiten. Neben der Eissporthalle und dem Kronthaler Weiher mit Naherholungsgebiet, ist die Therme Erding weit über die Stadtgrenzen hinaus bekannt. Ein sehr beliebtes Ausflugsziel für Familien, Kindergärten und Schulen ist der Stadtpark, der zu den städtischen Naturdenkmälern zählt. Die ausgezeichnete Infrastruktur, die Nähe zur Landeshauptstadt sowie zum Flughafen München haben Erding zu einem attraktiven Wohnort gemacht. Dieses neuwertige Reihenmittelhaus befindet sich in einem ruhigen Wohngebiet im Stadteil Klettham. Dadurch ist das Stadtzentrum mit sämtlichen Einkaufsmöglichkeiten, Ärzten, Schulen, Kindergärten sowie die S-Bahn (S2 - Altenerding) in wenigen Minuten erreichbar.
- Energieausweistyp:
Bedarfsausweis Energiekennwert: 65,7 Energieträger Fernwärme Energieeffizienzklasse: B Energieausw. Datum: 16.07.2018 Energieausweis gültig bis: - Modernisierung/Sanierung: - Alle Informationen in unseren Angeboten beruhen auf den Angaben unseres Auftraggebers und/oder dessen Bevollmächtigten. Eine Haftung für deren Richtigkeit und Vollständigkeit können wir daher nicht übernehmen.
Für weitere Informationen und eine Besichtigung stehen wir Ihnen unter der Telefonummer (+49) 8122 - 22 755 63 gerne zur Verfügung.
Bitte beachten Sie, dass wir nur Anfragen mit vollständiger Angabe Ihrer Kontaktdaten bearbeiten können.































